如何畫機械制圖之起重鉤?
機械制圖中的起重鉤的<愛尬聊_尬聊生活>畫法首先是需要確定各部分的詳細尺寸(吊鉤的大小),畫法中主要是圓弧的連接問題,過去采用圓規畫,比較麻煩且不十分準確,現在多數采用CAD作圖,簡單準確,那么如何畫機械制圖之起重鉤呢?
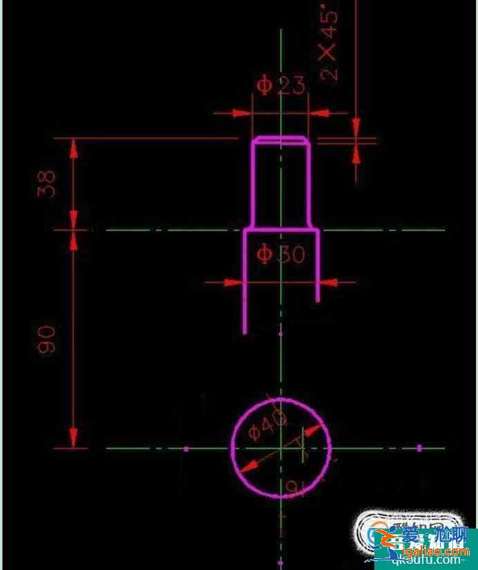
操作方法01首先我們先畫出中心線,再畫定位線,畫定位線需要用線畫繪制。如圖所示

接著我們再畫上起重機的上面部分,還有畫一個直徑40的圓,如圖所示。

接著我們找到圓心,然后畫剩下的r48的圓,如圖所示。

接著在“繪圖”菜單中用“相切—相切—半徑”畫出R40與R50兩圓,如圖所示。

然后修剪,再定位圓心尺寸:一個向下15mm,并作一輔助圓(以主圓心為圓心,以60+20=80為半徑);一個向左23mm,分別用半徑60、半徑23作圓,如下所示。

再用“相切---相切---半徑”畫出R8之圓,如圖所示。

最后再畫倒角和倒圓角,經修剪后得到所要求作的圖,如圖所示,完成過后再去除多余的輔助線即可。

